Xcellerate Properties

Lot 2 - Railway Terrace - Osborne

Osborne, Adelaide, SA, 5017

Lot 2 - Railway Terrace - Osborne

Osborne, Adelaide, SA, 5017

Description

*Please be advised that some lots/units may need confirmation of availability. Kindly ensure to check availability first by emailing or phoning us.*

Osborne, located about 21 kilometres northwest of Adelaide’s city centre, is a coastal suburb within the City of Port Adelaide Enfield. It’s a small but strategically significant area that combines residential, industrial, and maritime activity, thanks to its position along the LeFevre Peninsula and proximity to key defence and shipbuilding facilities. Osborne offers a quiet, community-oriented lifestyle with the added benefit of being close to both the beach and major employment hubs.

Local amenities in Osborne are practical and centred around daily convenience. The suburb features several local parks and reserves, including Ray Brooks Reserve and nearby Taperoo Reserve, which provide open spaces for recreation, picnicking, and sports. Residents also enjoy easy access to the beaches of North Haven and Taperoo, both just minutes away, offering opportunities for swimming, fishing, and coastal walks. Community facilities such as sporting clubs, playgrounds, and local halls help foster a friendly and relaxed environment.

Shopping options in and around Osborne are convenient, with small local stores and service outlets available within the suburb and neighbouring areas. Larger shopping centres such as North Haven Shopping Centre and Semaphore Road precinct provide supermarkets, cafes, restaurants, and specialty shops. For broader retail and entertainment needs, Westfield West Lakes is only a short drive away, offering a wide range of shopping, dining, and leisure facilities.

Education in Osborne is well catered for through nearby schools and childcare options. Local families have access to Osborne Primary School, while other nearby schools include North Haven School (R–7), Le Fevre High School, and Ocean View College in Taperoo. Childcare centres and kindergartens are also available within a short distance, making the area convenient for families with young children.

Transportation in Osborne is efficient and well-connected. The suburb is serviced by the Outer Harbor railway line, with the Osborne and North Haven train stations providing regular services to Adelaide’s CBD. Adelaide Metro bus routes also operate through the area, and major roads such as Military Road and Victoria Road offer direct access to Port Adelaide, West Lakes, and the city. The suburb’s location near the Outer Harbor makes it convenient for those working in maritime, logistics, or defence industries.

Overall, Osborne offers a relaxed coastal lifestyle balanced with urban convenience and employment opportunities. Its proximity to the beach, strong transport links, and access to key amenities make it an appealing choice for families, professionals, and workers in Adelaide’s thriving northwestern region, particularly those connected to the naval and industrial sectors.

Show More Show Less

Location

  • Address:

  • State/County:

  • Osborne

  • SA

  • City:

  • Zip:

  • Adelaide

  • 5017

  • Area:

  • Country:

  • Osborne

  • N/A

Property Details

Property ID:

62994

Price:

$ 878,900.00

Land Price:

$ 410,000.00

Build Price:

$ 468,900.00

Gross Return:

$ 30,420.00

Gross Yield:

4.70%

Property Size:

182.00

Capital Growth 12 Months:

13.48%

Capital Growth 10 Year Annualised:

7.51%

Vacancy Rate:

0.24%

Property Type:

House and Land

Property Status:

N/A

Weekly Rent:

$ 795.00

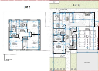
Rooms :

4

Bedrooms :

4

Study Rooms :

N/A

Bathrooms :

3

Garage :

2

Garage Size :

N/A

Storeys :

N/A

Title Status :

N/A

Estate :

[Estate]

Similar Listings

Compare Properties

Compare (0)